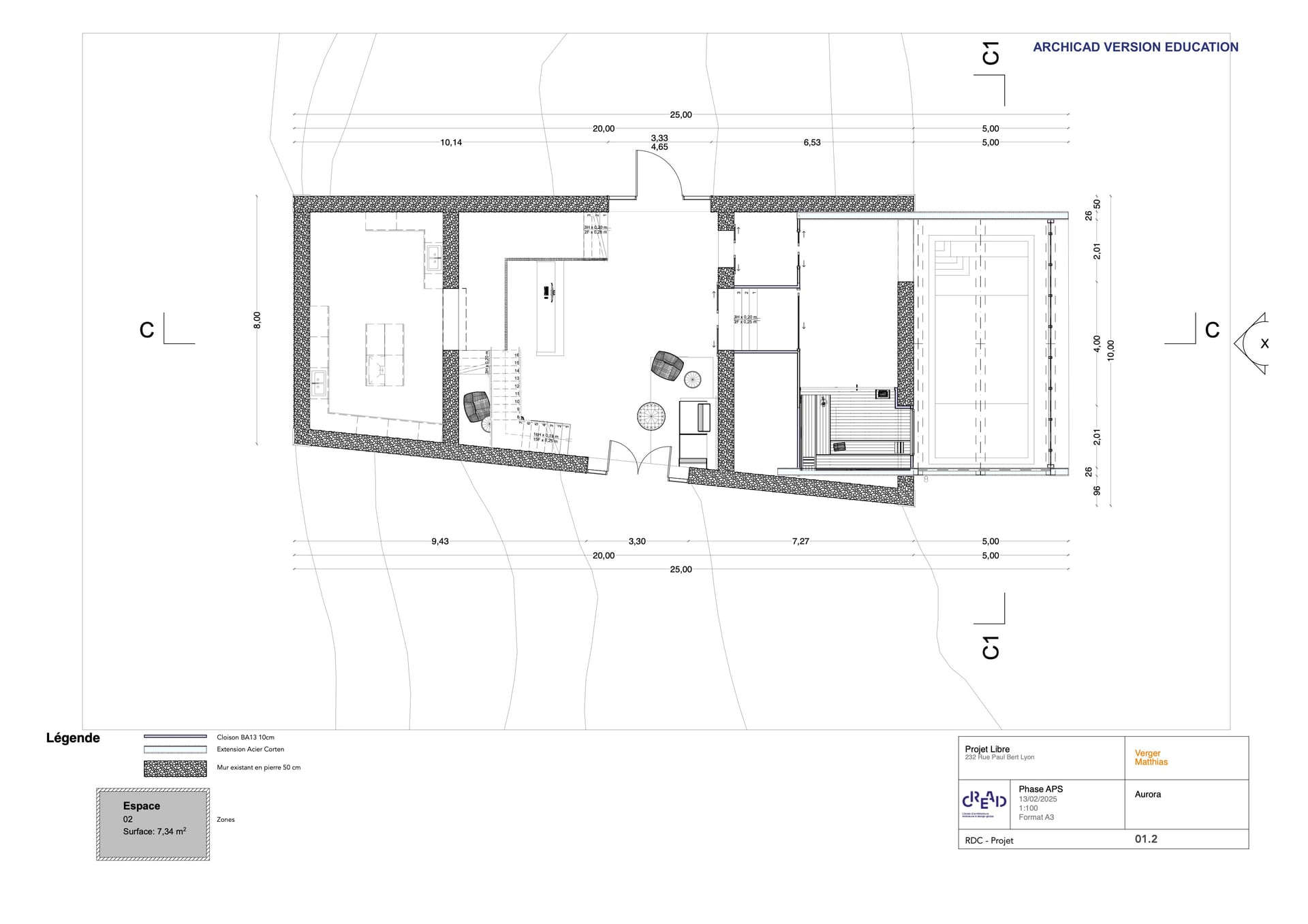
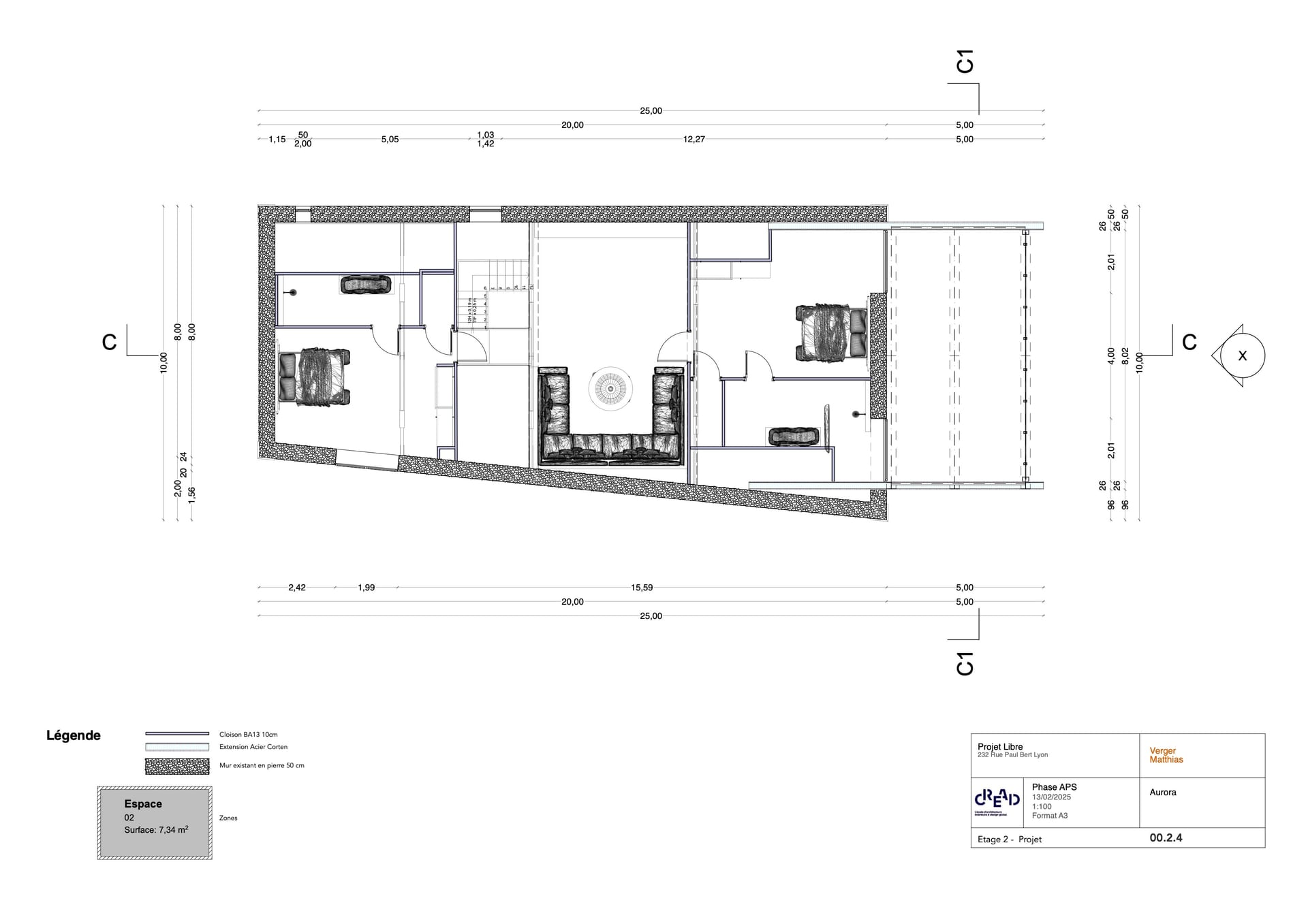
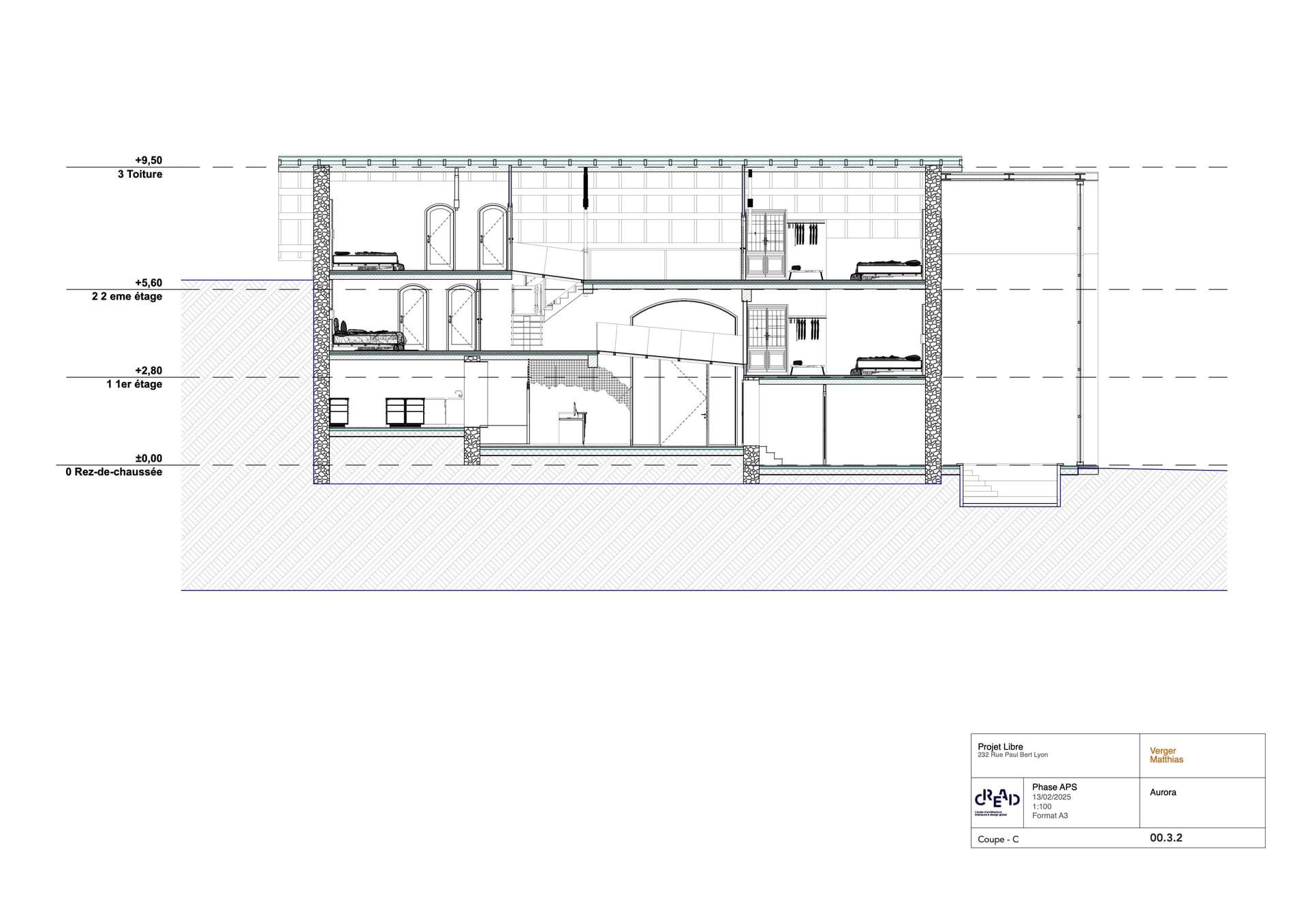
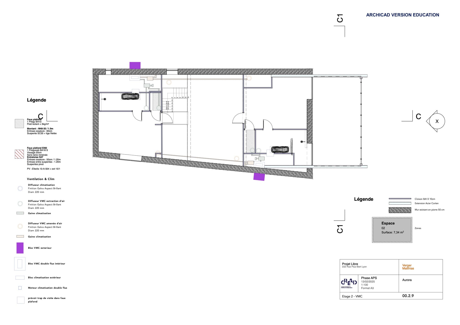
Concept architectural
Le travail architectural a été conçu autour de la liaison verticale et horizontale de l'espace. La circulation verticale est assurée par des escaliers en acier corten, qui relient les différents niveaux de manière fluide et esthétique. Les passerelles, également en acier corten, favorisent la liaison horizontale, créant des parcours à la fois fonctionnels et poétiques au sein du bâtiment.
Détail passerelle

Détail structurel

L'extension a été pensée de manière à s'intégrer harmonieusement à la
structure en pierre du bâtiment existant. L'extension s'emboîte avec délicatesse dans cette masse, respectant l'équilibre entre l'ancien et le nouveau, et offrant une transition fluide entre les différents volumes. Ce jeu d'emboîtement renforce l'unité du projet, tout en soulignant la complémentarité entre les matériaux.









































































