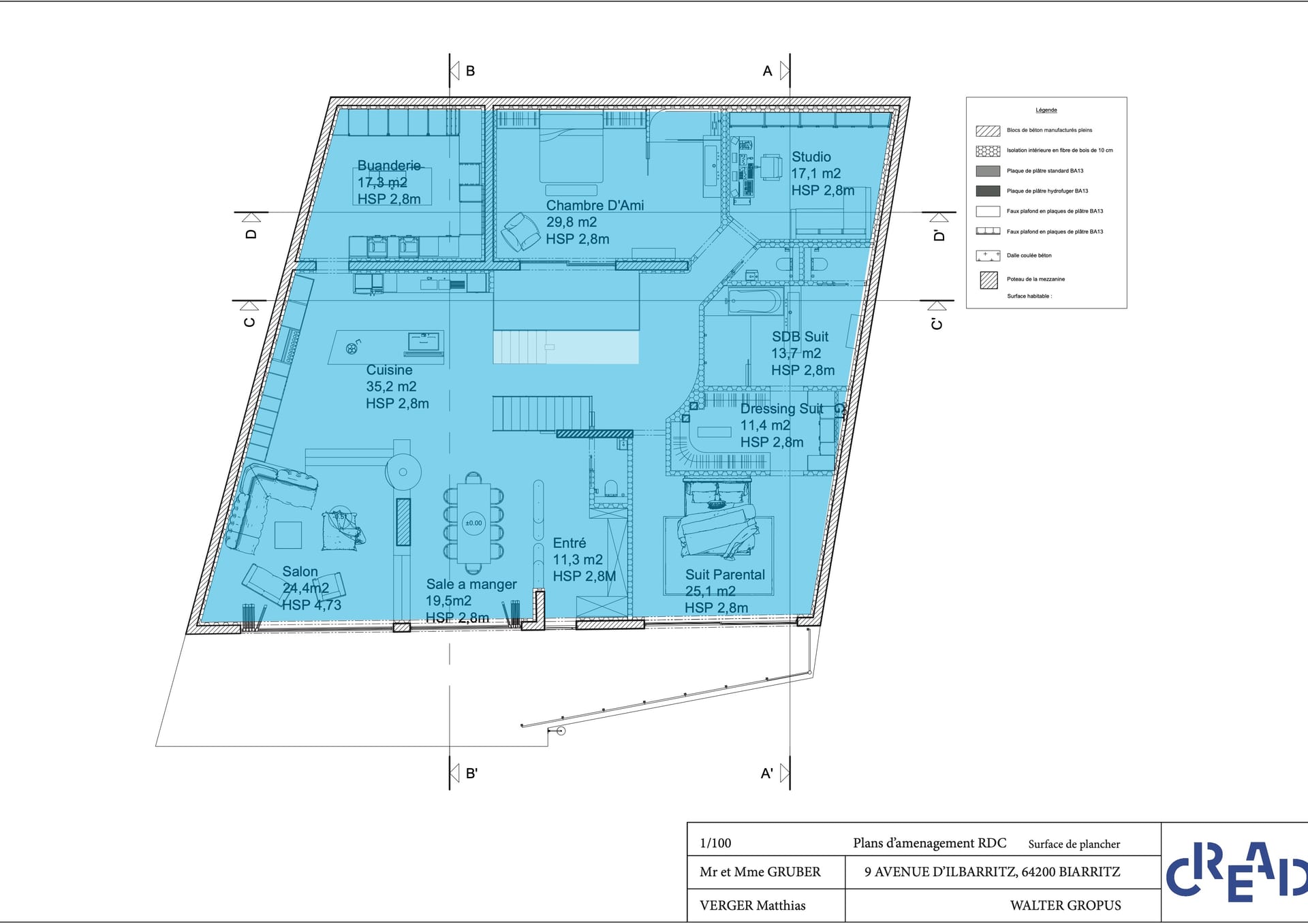
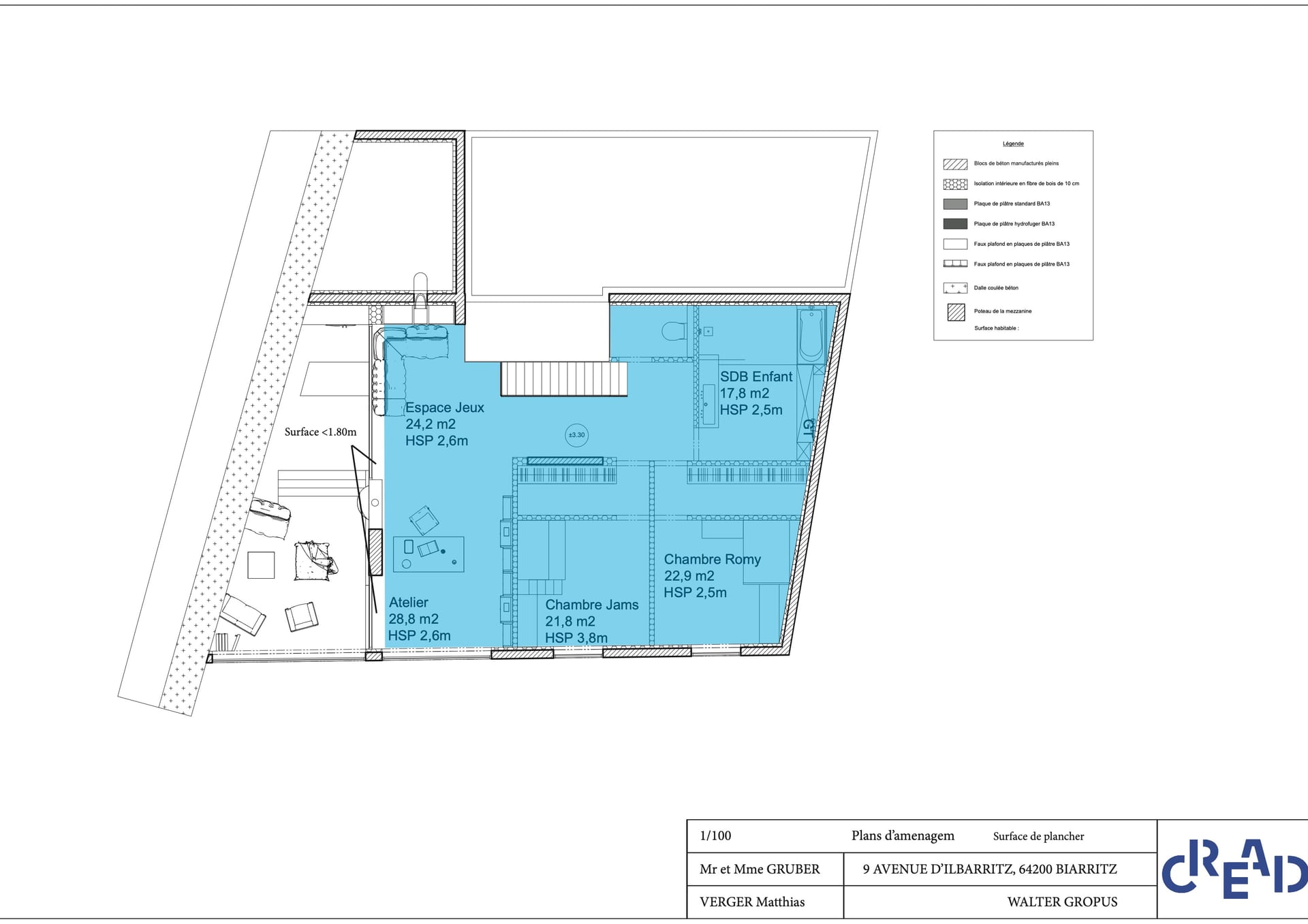
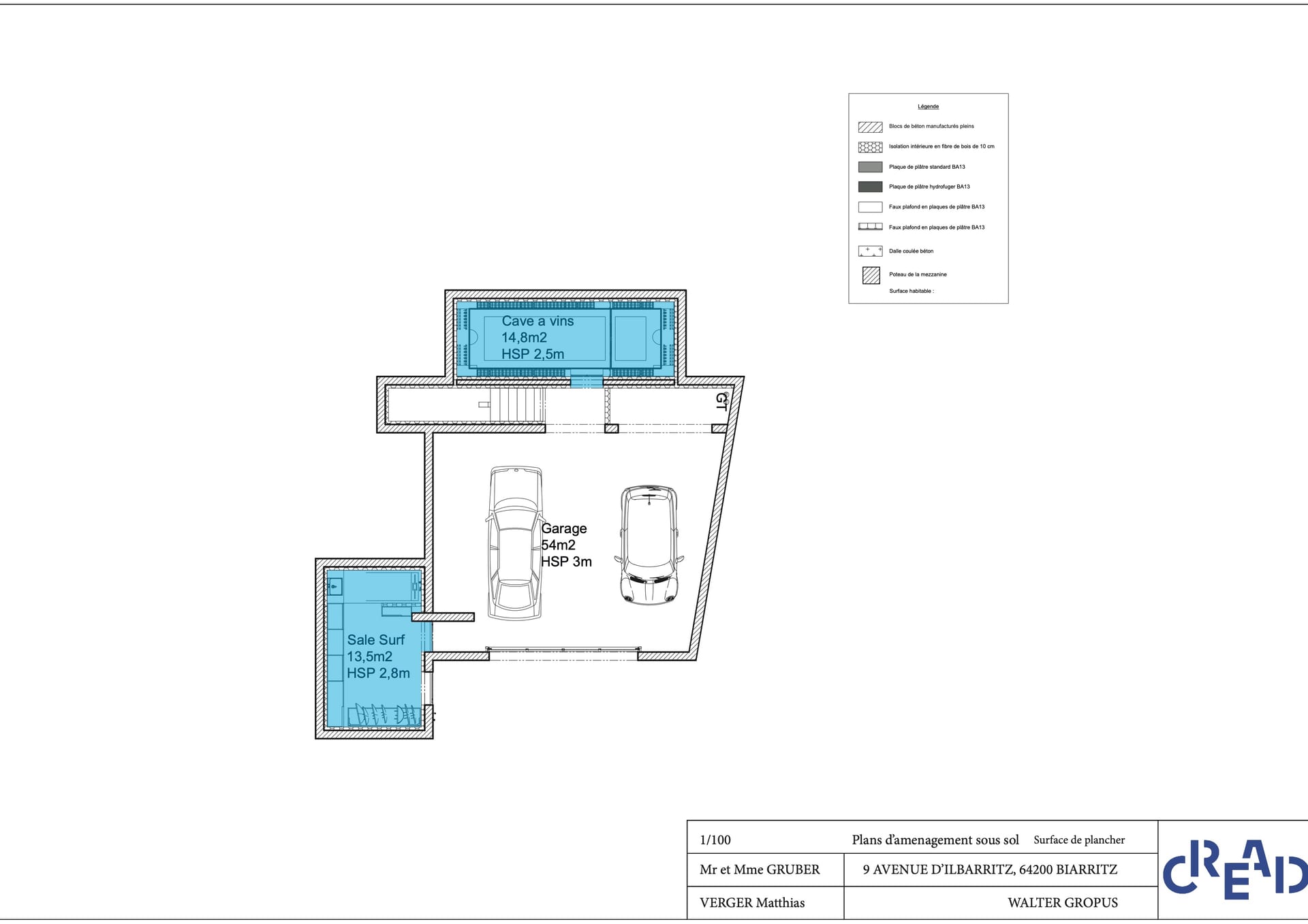
Plan et Plan technique
La réalisation de plans techniques complets, incluant notamment la VMC, la plomberie, l'électricité, le chauffage, les cloisons en plaques de plâtre ainsi que le mobilier.
Il s'agissait de notre première année de travail sur logiciel de conception assistée par ordinateur. L'ensemble des documents graphiques a été produit sur AutoCAD, permettant d'aborder la production de plans techniques et de développer une méthodologie de dessin numérique appliquée à un projet architectural.





























